Follow us
facebook Iconinstagram Iconyoutube Iconpinterest Icon
Overview Key information

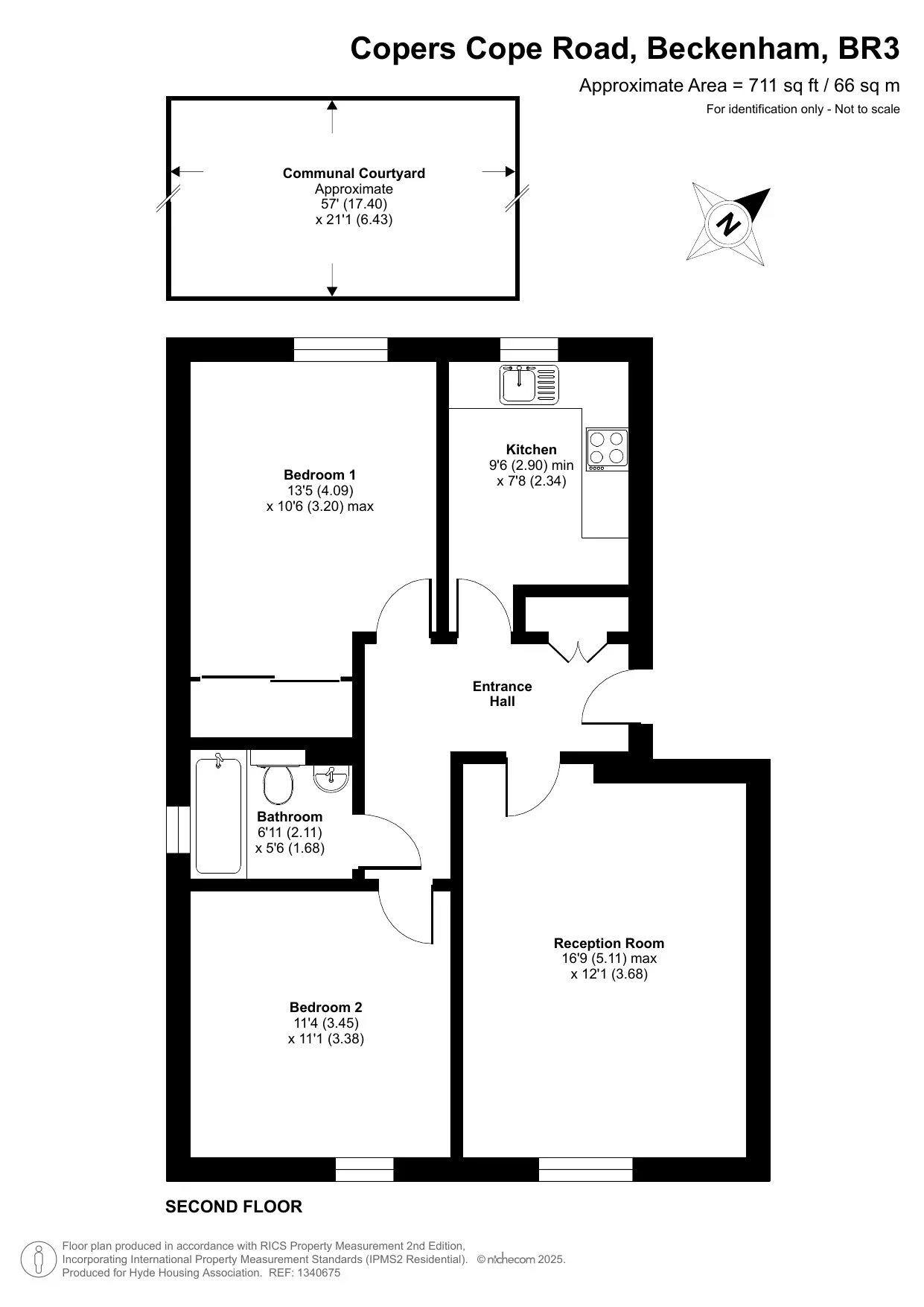
2 bedroom apartment
Blyton Court
Shared Ownership (resales)
£240,000
60%
share
Full market value:
£400,000
Minimum deposit:
£24,900
2 bed 1 bath 711 sq. ft.
Enquire now
Enquire now
For |

A second (top) floor, two-bedroom apartment in Beckenham.

Property Features:

• Communal entrance with entry system

• Reception room

• Kitchen with integrated appliances

• Family bathroom with shower over bath

• Hallway storage

• Communal courtyard

• Off street parking

Lease: Commenced 2003 with 125-year term

Council Tax Band: Bromley Council – C

Prior to viewing: All applicants must be registered and approved by Hyde New Homes and may be required to carry out a shared ownership affordability assessment.

Local Area:

• Just a 5-minute walk from New Beckenham train station, with direct services to London Bridge, London Waterloo East, and Charing Cross. Beckenham Junction and Beckenham Hill stations are also within walking distance, offering routes to London Victoria and Blackfriars. Local travel is further supported by nearby bus services, and drivers benefit from excellent road links to surrounding areas and central London.

• Everyday needs are catered for by a lively high street with cafés, restaurants, shops, and es-sential amenities, while the Beckenham Beacon provides healthcare services including an Urgent Care Department. For larger retail options, Bell Green Retail Park—home to Sains-bury’s, Aldi, Next, and B&Q—is just a short drive or walk away.

• Nature lovers will enjoy being only a 10-minute walk from Beckenham Place Park, a stunning green space that hosts regular food markets and community events. It’s a great destination for wild swimming in the purpose-built lake, running with Parkrun, walking the dog, or en-joying a relaxed bite and drink at the park café.

• Families will appreciate the abundance of Ofsted-rated ‘Good’ and ‘Outstanding’ nurseries, primary, and secondary schools in the area, as well as a strong sense of community. Sur-rounded by thriving neighbouring suburbs such as Crystal Palace, Bromley, Forest Hill, Catford, and Sydenham, Beckenham offers endless options for leisure, dining, and enter-tainment.

Financial Information:

Property Value = £400,000

Percentage Share = 60%

Share Price = £240,000

Monthly Rent = £296.05

Monthly Service Charge = £178.19

Please note the rent and service charge is reviewed annually 01 April. Your home may be at risk if you do not keep up your mortgage and rent repayments. Particulars give an overall description of the property and are not intended to constitute an offer or form part of any contract. Areas, distances or measurements referred to are approximate. For confirmation of property details refer to the terms of the lease and plans from your solicitor. Hyde New Homes Resale properties are sold as seen. Please note that the Resales Team have not visited this property.

Map

Layouts

Similar homes
Shared Ownership (resales)
£148,000
Minimum deposit: £14,800
Full market value: £370,000
2 bed 2 bath 692 sq. ft.
Resales
Denman Place, Brighton, Coldean, BN1 9BW
Shared Ownership (resales)
£110,250
Minimum deposit: £11,025
Full market value: £315,000
2 bed 2 bath 765 sq. ft.
Resales
Halyard Heights, Glenway Road, Rochester, ME1 1RW
Shared Ownership (resales)
£92,000
Minimum deposit: £9,200
Full market value: £230,000
2 bed 1 bath 678 sq. ft.
Resales
Salisbury Road, Dartford, DA2 6GY

A modern and bright, ground floor, two-bedroom apartment in Dartford.