Follow us
facebook Iconinstagram Iconyoutube Iconpinterest Icon
Overview Key information

Empire Road

2 bedroom terraced house
Shared Ownership (resales)
£97,500
Reserved
30%
share
Full market value:
£325,000
Minimum deposit:
£9,750
2 bed 1 bath 936 sq. ft.
Empire Road
Empire Road, Strood, ME2 2GA

An ideal family home, offering generous living space, excellent storage and strong transport links.


Enquire now
Enquire now
For | Empire Road

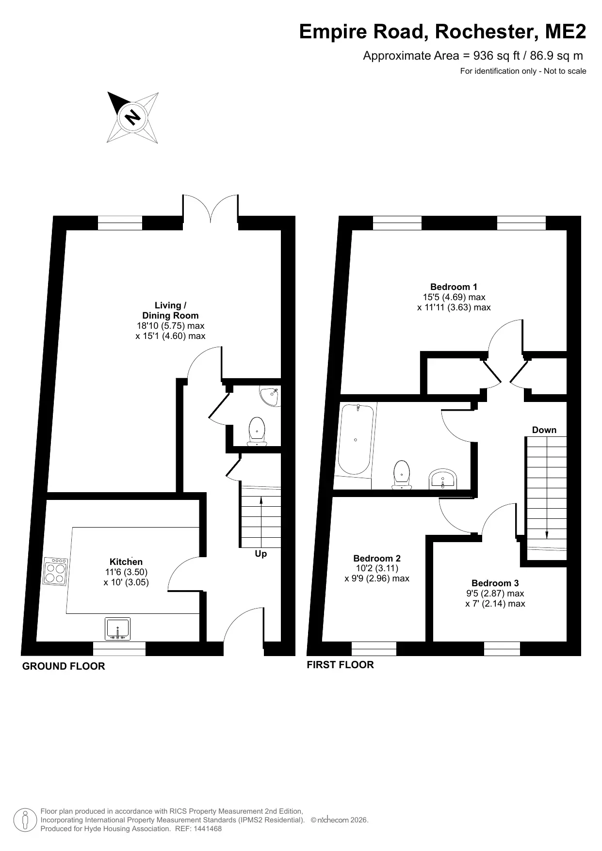
Situated in a popular residential location in Strood this well‑presented three‑bedroom home is perfectly suited to first‑time buyers or growing families seeking a modern, practical layout with outdoor space and convenient commuter access.

The ground floor offers a welcoming feel, comprising a fitted kitchen positioned to the front of the property and a valuable downstairs WC. To the rear is a spacious living/dining room, designed for modern family living, with direct access to the private landscaped garden, creating an excellent space for both entertaining and everyday use. Practicality is enhanced by an under‑stairs storage cupboard, ideal for coats or general household storage.

Upstairs, the property features three well‑proportioned bedrooms alongside a family bathroom fitted with a shower over the bath. The first floor also benefits from an airing cupboard and an additional storage cupboard, complete with shelving and hanging rail, ensuring storage needs are well catered for. A partly boarded loft provides further useful space.

Externally, the property enjoys a private rear garden, landscaped for low maintenance and benefiting from a Wendy house, storage unit and gated rear access. The home further benefits from allocated parking, visitor space on the nearby road, as well as access to a children’s play area, making it particularly appealing to families.

Additional highlights include double glazing, a new boiler, fibre broadband, and a layout that offers both comfort and efficiency.

Ideally located close to local shops, leisure facilities including a cinema, bowling alley and gym, and well‑regarded primary and secondary schools, the property also boasts excellent transport links. Strood and Rochester train stations provide frequent services into London, while the A2 and motorway network are easily accessible. For those who enjoy the outdoors, countryside walks and riverside routes are within easy reach.

Lease: Commenced 2008 with 125-year term

Council Tax Band: Medway Council – D

Property Features:

  • Ground Floor
  • Fitted kitchen
  • W/C
  • Under-stair storage
  • Living / Dining room with garden access

First Floor

  • Three bedrooms
  • Family bathroom with shower over bath
  • Airing and storage cupboard

Extras

  • Allocated parking with visitor space
  • Children’s play area
  • Private garden with a Wendy house, storage unit and gate access
  • Fibre broadband

Please note the rent and service charge is reviewed annually 01 April. Your home may be at risk if you do not keep up your mortgage and rent repayments. Particulars give an overall description of the property and are not intended to constitute an offer or form part of any contract. Areas, distances or measurements referred to are approximate. For confirmation of property details refer to the terms of the lease and plans from your solicitor. Hyde New Homes Resale properties are sold as seen. Please note that the Resales Team have not visited this property.

Prior to viewing: All applicants must be registered and approved by Hyde New Homes and may be required to carry out a shared ownership affordability assessment.

Map

Layouts

Similar homes
Shared Ownership (resales)
£139,500
Minimum deposit: £13,950
Full market value: £310,000
1 bed 1 bath 533 sq. ft.
Resales
Painter House, Sidney Street, London, Whitechapel, E1 2HU
Shared Ownership (resales)
£108,000
Minimum deposit: £10,800
Full market value: £360,000
2 bed 2 bath 679 sq. ft.
Resales
Denman Place, Denman Place, Brighton, Coldean, BN1 9BZ

A well-presented, 2-bedroom apartment with ensuite.

Shared Ownership (resales)
£148,000
Minimum deposit: £14,800
Full market value: £370,000
2 bed 2 bath 692 sq. ft.
Resales
Denman Place, Denman Place, Brighton, Coldean, BN1 9BW